R 8 400 000
                    
                        Warehouse for sale in Rivergate
                    
                    
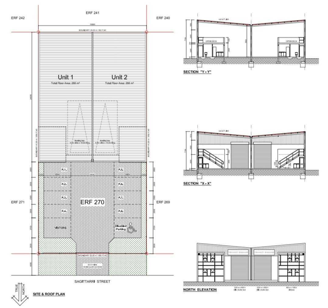
                        1-2 Titan Park 2, 1 Sagittarri, Rivergate, Milnerton
                    
                    
                         532 m²
                        Available: 1 Jul 2026
                    
                 
                
                    
                        532sqm Brand New Combined Warehouse For Sale in Rivergate, Cape Town
                    
                    
Brand New Sectional Title Development
2 adjacent units (266sqm each) left
Approximately R 15 789 per sqm (excluding VAT)
Double volume warehouse – 404 sqm
Mezzanine floor – 64 sqm
Ground floor office – 44 sqm
Kitchen & toilets – 20 sqm
Power floated warehouse floor
Tiled office floor
Ready for solar power installation
8 parking bays + visitors bay
Levies - TBC
Estimated occupation date: July 2026
Located in the secure enclave of Pegasus Park, Rivergate Industrial
MyCiti public transport circulates the area
Close proximity to the N7 highway, Blouberg / Table View, Milnerton and Durbanville
26km drive to Cape Town International Airport
23km drive to Cape Town International Harbour
Contact Eon directly - Call, Whatsapp, Telegram or Sms 
                    
Property Features
                    
		
                        Key Features
                        
                                
                                    Floor Size 532 m²
                                
                            
                                
                                    Pets AllowedNo
                                
                            
                                
                                    Available1 Jul 2026